|
隨著城市的發展,地下空間的增多,污水提升器開始逐漸被人熟知。污水提升器也越來越多的開始使用家庭地下室、地下商業空間等領域。商業用水,水質狀況復雜,因而污水提升設備需要更強大的功能,南京米諾A型污水提升應運而生。

那南京米諾A型污水提升到底有何優勢呢?
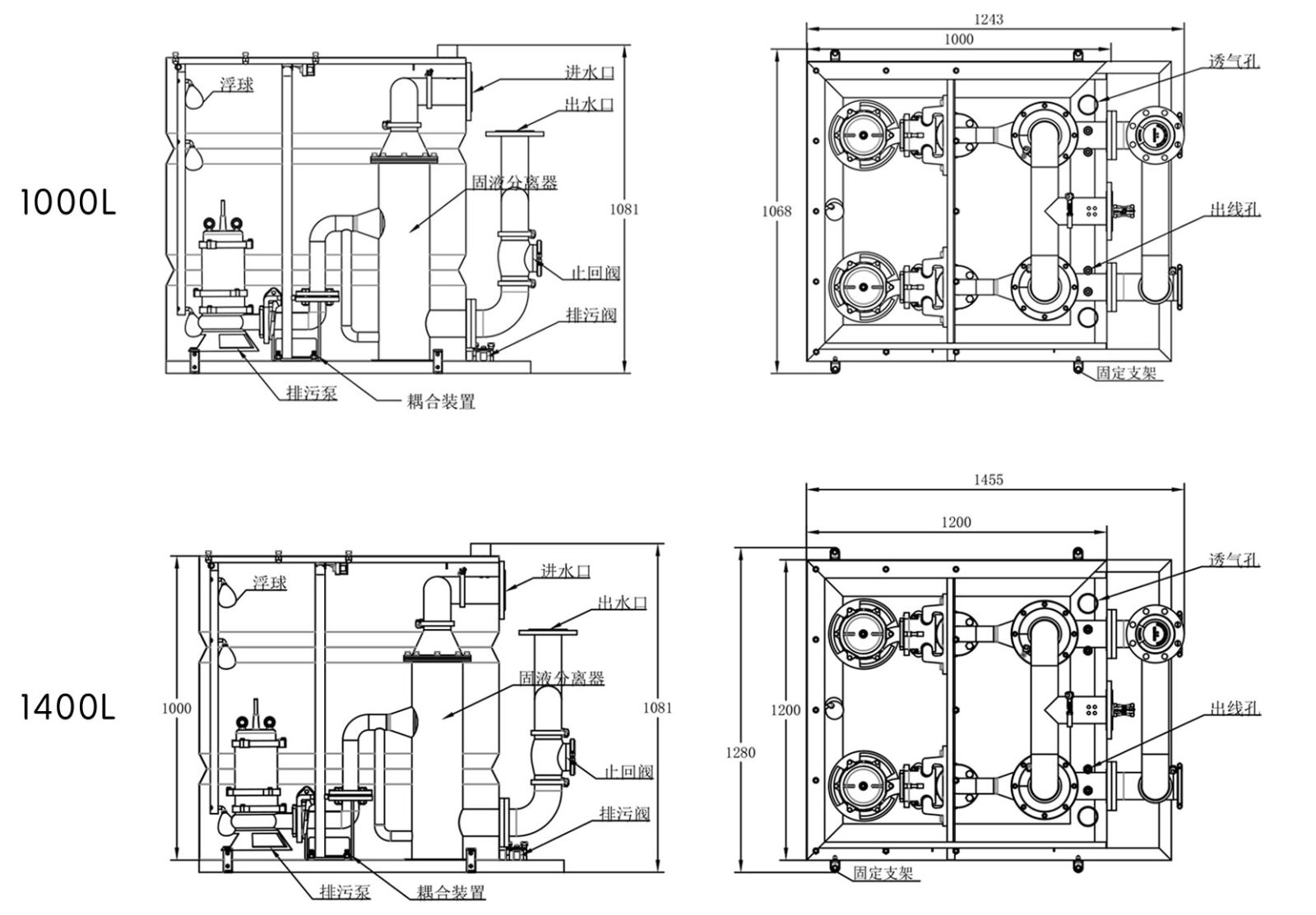
①從產品的細節圖出發:

南京米諾A型污水提升(簡稱MNWPG-A型)具備立式固液分離器,不銹鋼全通到球形止回閥,標準耦合裝置,不銹鋼導軌,不銹鋼方管底座及固定支架,配置雙液控制器,超大人孔設計,易于提泵檢修等功能。
②從產品功能上出發,MNWPG-A型具備聚污水收集,液位控制,隔離處理,提升排放功能。
③從產品特點上出發,MNWPG-A型二通,雙泵交替運行,雜物污水分離,氣動裝置控制,還可手機云端控制,報警故障提示,手動/自動運行,有效節約成本。
在排水過程中,MNWPG-A型系統控制兩臺水泵交替工作,整個運行流程有序進行,重復循環進行以下過程。

※當液位傳感器檢測到有水進入設備時,系統將啟動輔助泵(輔泵為選配)排出污水,同時發出警報。
當然針對各種環境,需要不同參數的污水提升泵,南京米諾也會根據需求調整定制出適宜的污水提升泵。


南京米諾A型污水提升泵主要適應于地下商場,地鐵站,醫院,停車場,學校,地下過過道等領域。更多關于南京米諾A型污水提升設備詳細內容,可與客服詳細溝通。
[上一個:反沖洗B型污水提升設備]
[下一個:沒有了]

全國招商熱線:17766075139
郵箱:2851551287@qq.com
地址:南京市江北新區葛塘街道博富路27號

微信客服